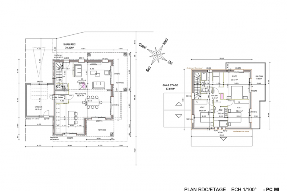
Conception par LS Concept des plans, visuels 3D et permis de construire d’un magnifique chalet d’une superficie habitable de 130m2 et d’un garage de 17m2. De vaste volume lumineux, mis en valeur par des matériaux nobles et élégants comme le bois et la pierre naturelle. Projet réalisé sur la commune de Formiguères dans les Pyrénées orientales.
