Permis de construire, plans, visuels 3D Villa contemporaine 100m2

par | Plans & visuels 3D

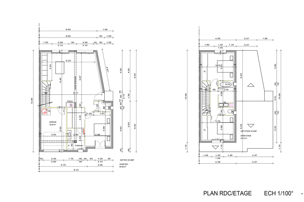
LS Concept a réalisé les plans, visuels 3D et le permis de construire pour cette villa 3 faces de 100m2 habitable et garage de 18m2.


 

construction-maison-demi-étage-vue-avant construction-maison-demi-étage-vue-avant
construction-maison-demi-étage-jardin construction-maison-demi-étage-jardin
plan-villa-construction-permis-construire plan-villa-construction-permis-construire
plan-masse-construire plan-masse-construire
permis-construire-villa-moderne permis-construire-villa-moderne
plan-rdc-etage plan-rdc-etage
construction-maison-demi-etage-vue-interieur-piecedevie construction-maison-demi-etage-vue-interieur-piecedevie