Permis de construire, plans et visuels 3D pour une villa de 75 m²

par | Plans & visuels 3D

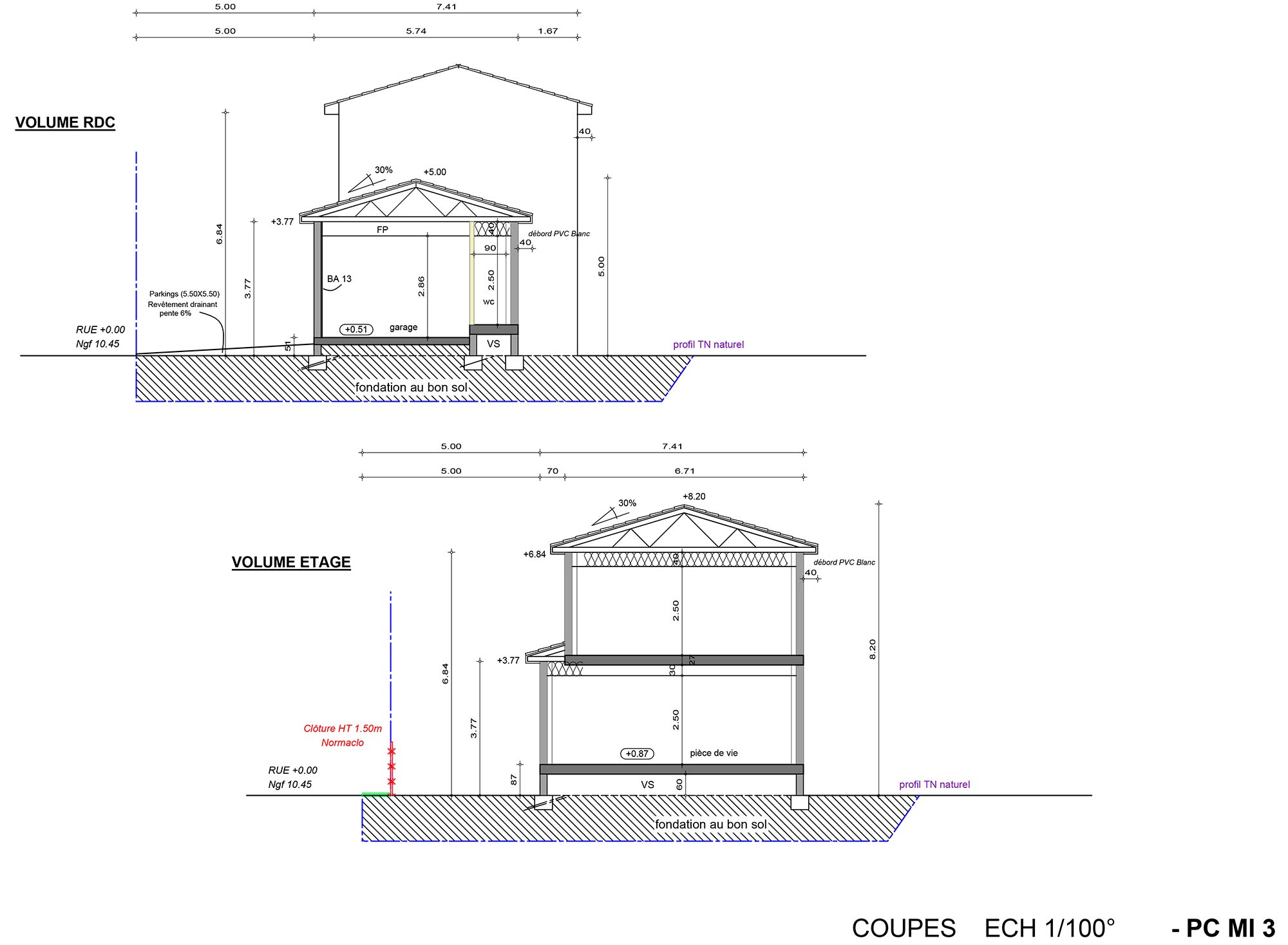
Réalisation par LS Concept d’un permis de construire avec plans et visuels 3D pour une villa demi étage de 75m2 et garage de 15 m2.


 

construction-villa-demi-étage-vue-avant construction-villa-demi-étage-vue-avant
construction-villa-demi-étage-vue-jardin construction-villa-demi-étage-vue-jardin
construction-villa-75M²-plandemasse construction-villa-75M²-plandemasse
construction-villa-75M²-facades-pignon construction-villa-75M²-facades-pignon
construction-villa-75M²-coupe-profil construction-villa-75M²-coupe-profil