Esquisse 3D Villa contemporaine demi étage 150m2

par | Plans & visuels 3D

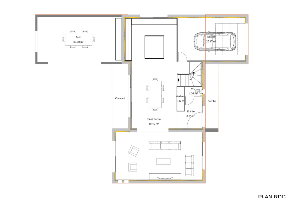
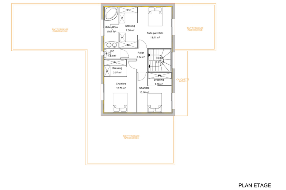
LS Concept à imaginé, dessiné et modélisé cette villa contemporaine de150m2 habitable avec un grand garage de 25m2 et une cuisine d’été (pool house) de 33m2.


 

villa-contemporaine-plan3D-constructeur villa-contemporaine-plan3D-constructeur
architecte-plan3D-construction-décoration architecte-plan3D-construction-décoration
architecte-intérieur-constructeur-plan3D architecte-intérieur-constructeur-plan3D
Plan-RDC-VILLA-en-L Plan-RDC-VILLA-en-L
Plan-ETAGE-VILLA-en-L Plan-ETAGE-VILLA-en-L
villa-contemporaine-construction-maitredoeuvre-maison villa-contemporaine-construction-maitredoeuvre-maison