Création de plans et permis de construire, villa moderne 160m2

par | Plans & visuels 3D

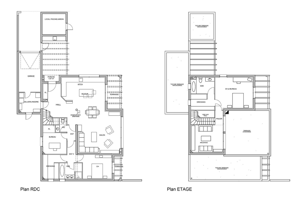
LS Concept à imaginé et conçu les plans et le permis de construire de cette villa moderne en demi étage d’une superficie de 160m2 habitable avec un garage de 15m2 sur la commune de Villeneuve de la Raho dans les Pyrénées orientales.


 

 

plan-terrain-toiture-terrasse-projet-villa-pyrenees-orientales-66 plan-terrain-toiture-terrasse-projet-villa-pyrenees-orientales-66
plan-rdc-etage-villa-contemporaine-architecture_20 plan-rdc-etage-villa-contemporaine-architecture_20
construction-facades-villa-toit-plat-pyrenees-orientales-66 construction-facades-villa-toit-plat-pyrenees-orientales-66