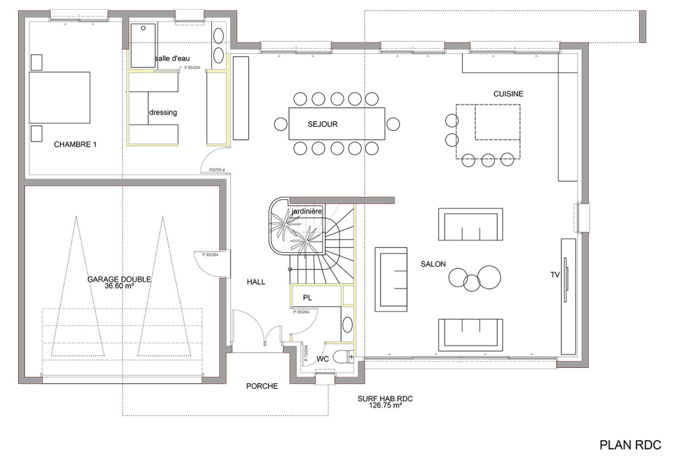
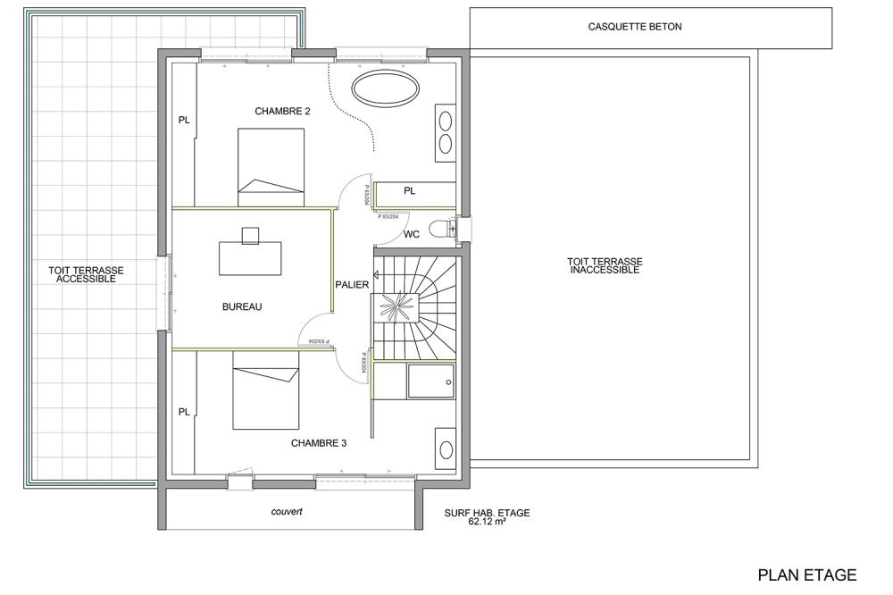
LS CONCEPT a imaginé, dessiné et façonné ce beau projet de villa d’architecte d’une superficie de 180m2 habitable, 30m2 de garage et 45m2 de balcon.
Cette villa ultra moderne composé de différents volumes architecturaux créant juxtaposition et extrusion mettant en évidence des décalages à son style si particulier.
La villa de 5 pièces, se compose d’une pièce de vie de 90 m2, 1 bureau et 3 chambres avec salle d’eau et dressing.
Différents matériaux comme le bois, la pierre et le béton banché apportent des nuances de couleurs et de la dynamique au projet.
